Dunboyne Community Centre
ascendor wheelchair Lift
Location: County Meath, Ireland
Status: Completed
Lift Type: Step and Incline Lift
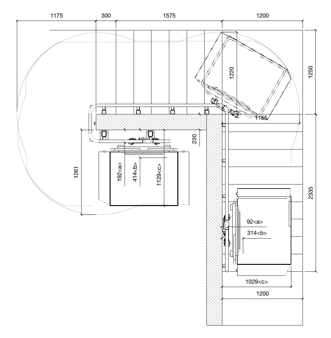
To improve access to the gym located on an upper floor, the Dunboyne Community Centre in County Meath required an inclusive mobility solution. We installed the Ascendor Wheelchair Lift, providing safe travel along the existing curved staircase for wheelchair users.
The lift was supplied with standard finishes, ensuring a clean and durable integration into the building.
Status: Completed
Lift Type: Step and Incline Lift
To improve access to the gym located on an upper floor, the Dunboyne Community Centre in County Meath required an inclusive mobility solution. We installed the Ascendor Wheelchair Lift, providing safe travel along the existing curved staircase for wheelchair users.
The lift was supplied with standard finishes, ensuring a clean and durable integration into the building.

2
STOPS
STOPS
2960 MM
TRAVEL
TRAVEL
0.15 M/S
SPEED
SPEED
250 KG
RATED LOAD
RATED LOAD





