Lake House Eco Home Lift
Location: County Galway, Ireland
Status: Completed
Lift Type: Home Lift
The homeowners of this beautiful property in County Galway wanted a lift solution that would allow them to enjoy their home comfortably for years to come.
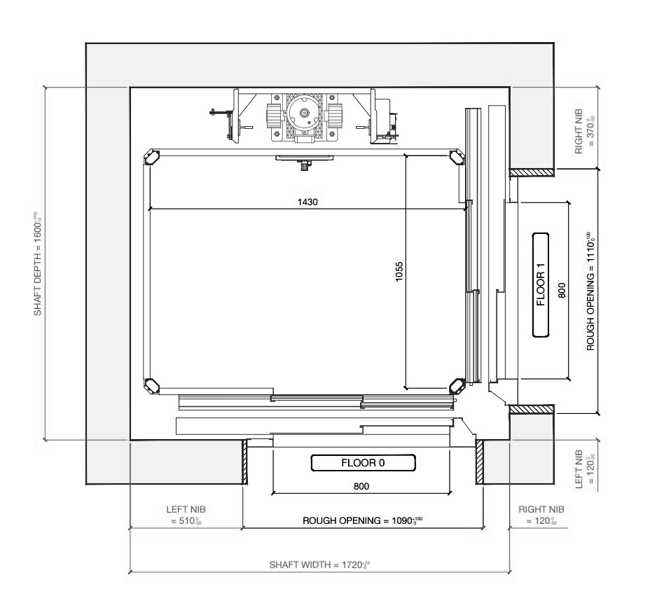
With limited floor space and a contemporary interior they wanted to preserve, our Eco Home Lift with an adjacent entry was the ideal choice. It provides smooth, energy‑efficient travel while maintaining a compact, space‑saving footprint that suits the layout of the home.
This project is a perfect example of how our home lifts in Ireland seamlessly integrate into private residences, giving homeowners confidence that their home will continue to meet their needs, no matter what the future holds.
Status: Completed
Lift Type: Home Lift
The homeowners of this beautiful property in County Galway wanted a lift solution that would allow them to enjoy their home comfortably for years to come.
With limited floor space and a contemporary interior they wanted to preserve, our Eco Home Lift with an adjacent entry was the ideal choice. It provides smooth, energy‑efficient travel while maintaining a compact, space‑saving footprint that suits the layout of the home.
This project is a perfect example of how our home lifts in Ireland seamlessly integrate into private residences, giving homeowners confidence that their home will continue to meet their needs, no matter what the future holds.

2
STOPS
STOPS
3290 MM
TRAVEL
TRAVEL
0.15 M/S
SPEED
SPEED
300 KG
RATED LOAD
RATED LOAD






