moycullen residence
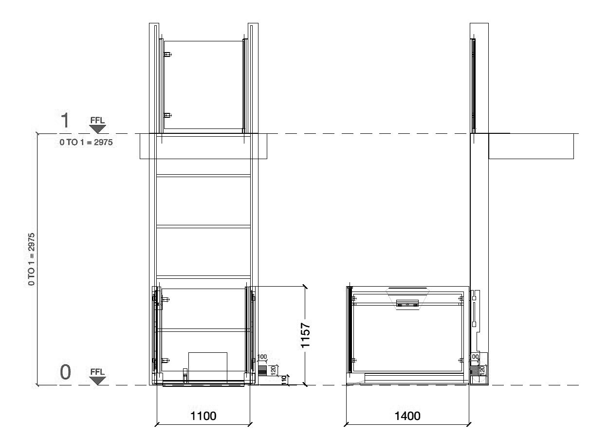
wheelchair Lift vpl150
Location: County Galway, Ireland
Status: Completed
Lift Type: Step and Incline Lift
This VPL150 wheelchair lift was installed at a residential estate in the heart of Moycullen, County Galway, to ensure residents can move safely and comfortably between varying ground levels.
Built for external durability, the VPL150 features weather resistant finishes, intuitive user controls, and a reliable, fully disability compliant design, providing a robust accessibility solution that will support residents in the years ahead.
Status: Completed
Lift Type: Step and Incline Lift
This VPL150 wheelchair lift was installed at a residential estate in the heart of Moycullen, County Galway, to ensure residents can move safely and comfortably between varying ground levels.
Built for external durability, the VPL150 features weather resistant finishes, intuitive user controls, and a reliable, fully disability compliant design, providing a robust accessibility solution that will support residents in the years ahead.

2
STOPS
STOPS
2975 MM
TRAVEL
TRAVEL
0.15 M/S
SPEED
SPEED
385 KG
RATED LOAD
RATED LOAD





